OFFRE EN COURS

Maison Ancienne 5 chambres 160 m2 - Terrain Plat 1008 m2 Tassin-la-Demi-Lune
DESCRIPTION DU BIEN
OFFRE EN COURS
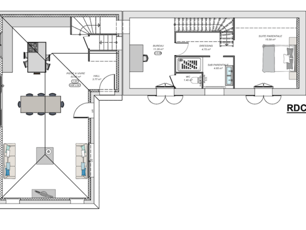
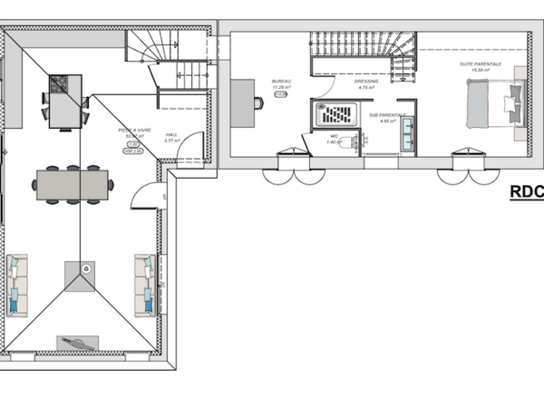
Tassin bourg, à proximité immédiate des écoles et du Tram-train, au calme, magnifique projet de rénovation d’une propriété ancienne, avec agrandissement, sur une parcelle de terrain piscinable de 1000 m2.Le projet présenté propose 5 chambres, dont une suite parentale avec salle d’eau et dressing, un beau séjour avec cuisine US ouvrant sur le jardin clos exposé plein sud.Pour visiter ce bien, contactez François MARTIN (RSAC 751 090 374) au O6 52 51 14 88.Les informations sur les risques auxquels ce bien est exposé sont disponibles sur le site Géorisques : https://www.georisques.gouv.frCOMPROMIS AGENCE A VENIR
Voir nos honorairesINFORMATIONS ENERGETIQUES
EQUIPEMENTS / CONFORT
Agence de Tassin Le Bourg
66 avenue du 8 mai 1945
(face au restaurant Le Temps est Venu)
69160 Tassin la-Demi-Lune