








Appartement Récent 4 chambres 130 m2 - Petite Résidence & ParcLyon
DESCRIPTION DU BIEN
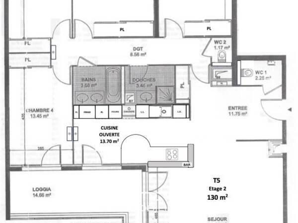
Lyon 5, limite Tassin la demi Lune, ALAI, dans une résidence fermée de 2005 dans parc, en retrait de la rue, venez découvrir cet appartement T5 de 130 m2 rénové intégralement avec goût. Il se compose d’une vaste entrée avec placards, d’une pièce de vie exposé à l’Ouest ouverte sur une cuisine équipée US de belle facture entièrement équipée, donnant sur terrasse avec vue sur le parc, un dégagement coin nuit dessert 4 chambres avec placards de belles tailles en parquet, salle de bains moderne, salle de douche, 2 wc. Chauffage individuel au gaz par radiateurs (chaudière neuve), complétée par une climatisation réversible. Possibilité d’acquérir un garage double en sus au prix de 25 000 €. DPE : C. Copropriété de 38 lots d’habitations principales.Charges annuelles : 3300 euros. Procédure en cours : Non.Les informations sur les risques auxquels ce bien est exposé sont disponibles sur le site Géorisques : https://www.georisques.gouv.frVisite virtuelle disponible ou sur demande.
Voir nos honorairesINFORMATIONS ENERGETIQUES
Afficher le diagnostic de performance énergétiqueLogement très performant
Logement extrêmement consommateur d'énergie
Peu d'émission CO2
Emission de CO2 très importantes
EQUIPEMENTS / CONFORT
Agence de Sainte Foy-lès-Lyon
39 avenue Maurice Jarrosson
(face au Casino)
69110 Sainte Foy-lès-Lyon