Proche Favorite 198m2 Utile 4 Chambres










Appartement Dernier Etage 4 chambres 115 m2 - Petite RésidenceLyon
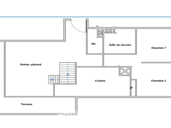
DESCRIPTION DU BIEN
Proche Favorite 198m2 Utile 4 Chambres
Limite Ste foy - Lyon 5 ème - Proximité La favorite et des commerces, appartement T5 de 115,63 m2 carrez, (198 m2 utile) à 10 minutes de Perrache. L’appartement se compose d’une entrée, d’un séjour de 30 m2 Sud /Est donnant sur une belle terrasse à l’Ouest et sur une cuisine indépendante équipée de 12 m2. Un dégagement dessert une chambre et un bureau ( poss 2ème chambre), une salle d’eau et un wc. A l’étage, un dégagement distribue un coin TV avec velux , 2 grandes chambres ( 20/22 m2) une salle d’eau et un WC. L’appartement est vendu avec une cave parking - . Possibilité garage fermé + 25 k€ Chauffage ind. gaz radiateurs - DPE : C. Climatisation dans séjour.Copropriété de lots d’habitations principales. - Taxe foncière de 1560 €. Charges 2520 € par Oralia.Procédure en cours : Non. Honoraires à la charge du vendeur. Pour organiser une visite ou obtenir des renseignements complémentaires : Contact Christian Lafaye au : 0607620309
Voir nos honorairesINFORMATIONS ENERGETIQUES
Afficher le diagnostic de performance énergétiqueLogement très performant
Logement extrêmement consommateur d'énergie
Peu d'émission CO2
Emission de CO2 très importantes
EQUIPEMENTS / CONFORT
Agence de Sainte Foy-lès-Lyon
39 avenue Maurice Jarrosson
(face au Casino)
69110 Sainte Foy-lès-Lyon