Terrain avec permis de construire 296 m2Écully
DESCRIPTION DU BIEN
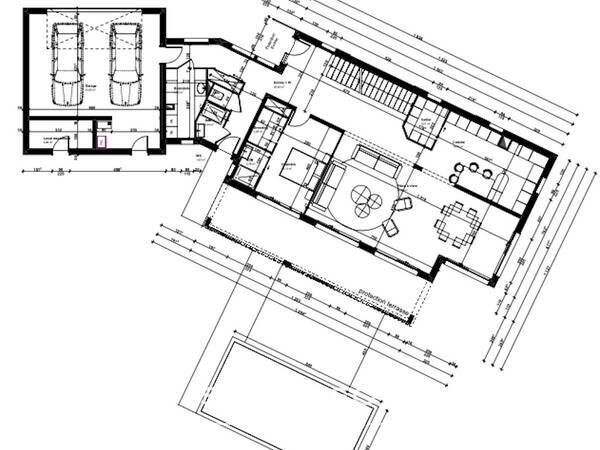
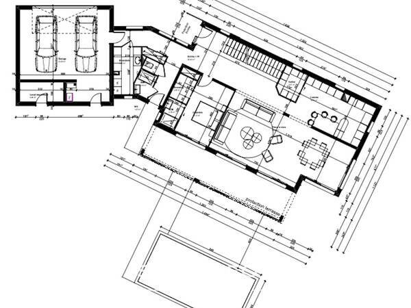
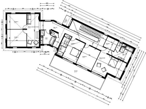
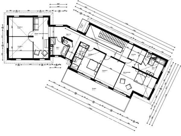
Écully – Secteur Hautes Bruyères - Très belle opportunité à saisir, dans un quartier calme et résidentiel à moins de 5 minutes en voiture du Centre du village. Terrain plat de 3677 m2 avec permis de construire purgé de tout recours, vous offrant la possibilité de vous lancer rapidement dans un projet de construction d’une maison de 296 m2 environ, en R+1, aménageable à l’intérieur selon vos goûts, avec garage double de 40 m2. Piscinable.Honoraires à la charge de l’acquéreur inclus dans le prix.Contact : François Lafaye 06 84 98 39 01 - Agence d’Ecully : 04 78 33 08 08
Voir nos honorairesINFORMATIONS ENERGETIQUES
EQUIPEMENTS / CONFORT
Agence d'Ecully
3 place Charles de Gaulle
(face à l'église)
69130 Ecully
