OFFRE EN COURS

Appartement Rez de Jardin 3 ch chambres 105 m2 - Résidence de StandingÉcully
DESCRIPTION DU BIEN
OFFRE EN COURS
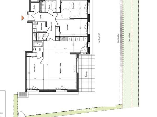
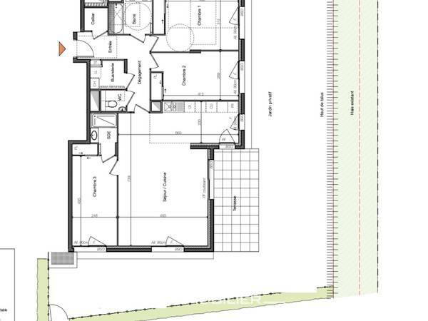
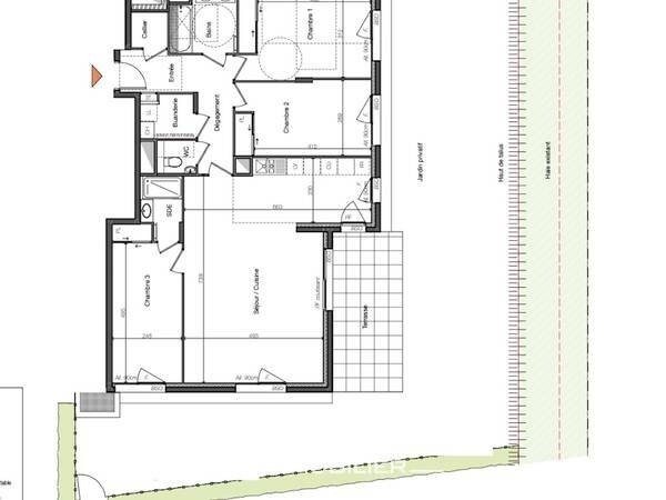
COMPROMIS AGENCE A VENIR'Villa Randin” - Situation remarquable, à 450 m du coeur du village - 16, chemin du Randin -, dans environnement calme et verdoyant. Au sein d’une résidence d’exception de 19 lots du T2 au T5, appartement rez-de-jardin de 105,35 m2 avec terrasse de 14,07 m2 et jardin privatif de 113,10 m2. IIl se compose d’une entrée, d’un séjour - cuisine équipée de 41,33 m2 donnant sur la terrasse, de 3 chambres avec placard dont 1 avec salle de douche, salle de bains et wc.Prestations de qualité. Charges faibles.Possibilité garage simple ou double.Conso Energie et GES : B Les informations sur les risques auxquels ce bien est exposé sont disponibles sur le site Géorisques : https://www.georisques.gouv.frCOMPROMIS AGENCE A VENIR
Voir nos honorairesINFORMATIONS ENERGETIQUES
Afficher le diagnostic de performance énergétiqueLogement très performant
Logement extrêmement consommateur d'énergie
Peu d'émission CO2
Emission de CO2 très importantes
EQUIPEMENTS / CONFORT
Agence d'Ecully
3 place Charles de Gaulle
(face à l'église)
69130 Ecully